
Kreative Architektur für moderne Lebensräume
PRO Architektur
Bernd Dietrich Architekt
© 2025 PRO Architektur Bernd Dietrich Architekt.
BÜRO
Bernd Dietrich
Architekt
- Abitur am Goethe Gymnasium Germersheim
- Architekturstudium an der Hochschule Kaiserslautern
- Abschluss als Diplom-Ingenieur Architektur 1993
- Mitglied der Architektenkammer Rheinland-Pfalz 1996
- Fortbildung zum SiGeKo 1999 und 2003
- Bürogründung PRO Architektur Dietrich + Thalmann 1997
- Bürogründung PRO Architektur Bernd Dietrich 2017
- Umzug in die neuen Büroräume 2024



Büroeingang
im OG ►
Philosophie
Architektur entsteht im Dialog - aus Haltung, Verantwortung und einem offenen Blick
Wir verstehen Architektur als ganzheitliche Aufgabe.
Es geht nicht nur um Formen, Materialien und Pläne –
sondern um das Zusammenspiel von Raum, Mensch
und Kontext. Jedes Projekt beginnt für uns mit genauem
Zuhören: Was braucht der Ort? Was wollen die Menschen,
die ihn nutzen? Welche Geschichte soll der Raum erzählen?
Unsere Entwürfe sind nie Selbstzweck.
Sie sind Antworten auf Anforderungen, auf Umgebungen, auf Ideen.
Wir arbeiten mit Neugier, mit gestalterischer Klarheit und mit
Respekt vor dem, was bereits da ist.
Nachhaltigkeit, Langlebigkeit und Qualität sind dabei keine
Schlagworte, sondern selbstverständlich Teil
unseres Denkens und Handelns.

Gute Architektur entsteht aus einem klaren Konzept – und wächst durch gute Zusammenarbeit.
Kreativität braucht Struktur, genauso wie Innovation auf Erfahrung aufbaut.
Jeder Bau verdient Individualität – aber auch Einfachheit und Ehrlichkeit.
Der Mensch steht im Mittelpunkt – nicht das Ego des Architekten.
Wir gestalten Räume, die bleiben. Und die mit ihren Nutzern wachsen dürfen.
Das ist unser Anspruch – und unsere Leidenschaft.
Leistungen
von der Idee bis zum Detail.
Ganzheitliche Planung mit Erfahrung, verantwortungsvoll und individuell.

- Vorplanung
- Entwurfsplanung
- Genehmigungsplanung (Bauantrag)
- Werk- und Detailplanung (Ausführungsplanung)
- Ausschreibung und Vergabe von Bauleistungen
- Objektüberwachung (Bauleitung)
- 3D-Visualisierungen
- Machbarkeitsuntersuchungen
- städtebauliche Konzeptionen
- Mithilfe bei der Bauplatzwahl
- Kostenschätzungen
- Architekturmodellbau
- Aufteilungspläne
- Bauaufnahme/Zeichnen von Bestandsplänen
- Neu- und Umbauten
- Altbausanierung
- Holzbau/Holzmodulbau
- Nutzungsänderungen
Projekte
Jedes Projekt ein Unikat.
Architektur, die auf den Ort reagiert -
und auf die Menschen, die sie nutzen.

Bitte scrollen
Wohnhaus O.S
Krematorium Landau
1997
Krematorium Landau
2017
Geschäftsgebäude
Bäckereifiliale + Büros
Kita Spatzennest
Bellheim
Altbausanierung
Wohnhausumbau K. H.
Rathaus Offenbach
- Objektüberwachung/Bauleitung
Architektur: Lieb Architekten,
Freudenstadt
Vinothek Junker
Impflingen
Wohnhaus J. B.
Stadthäuser Rheinsheim
Verschiedenes
Holzmodulbau
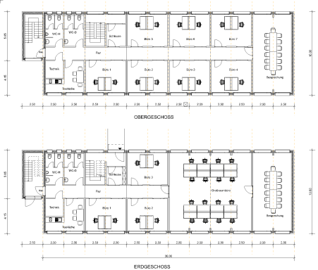
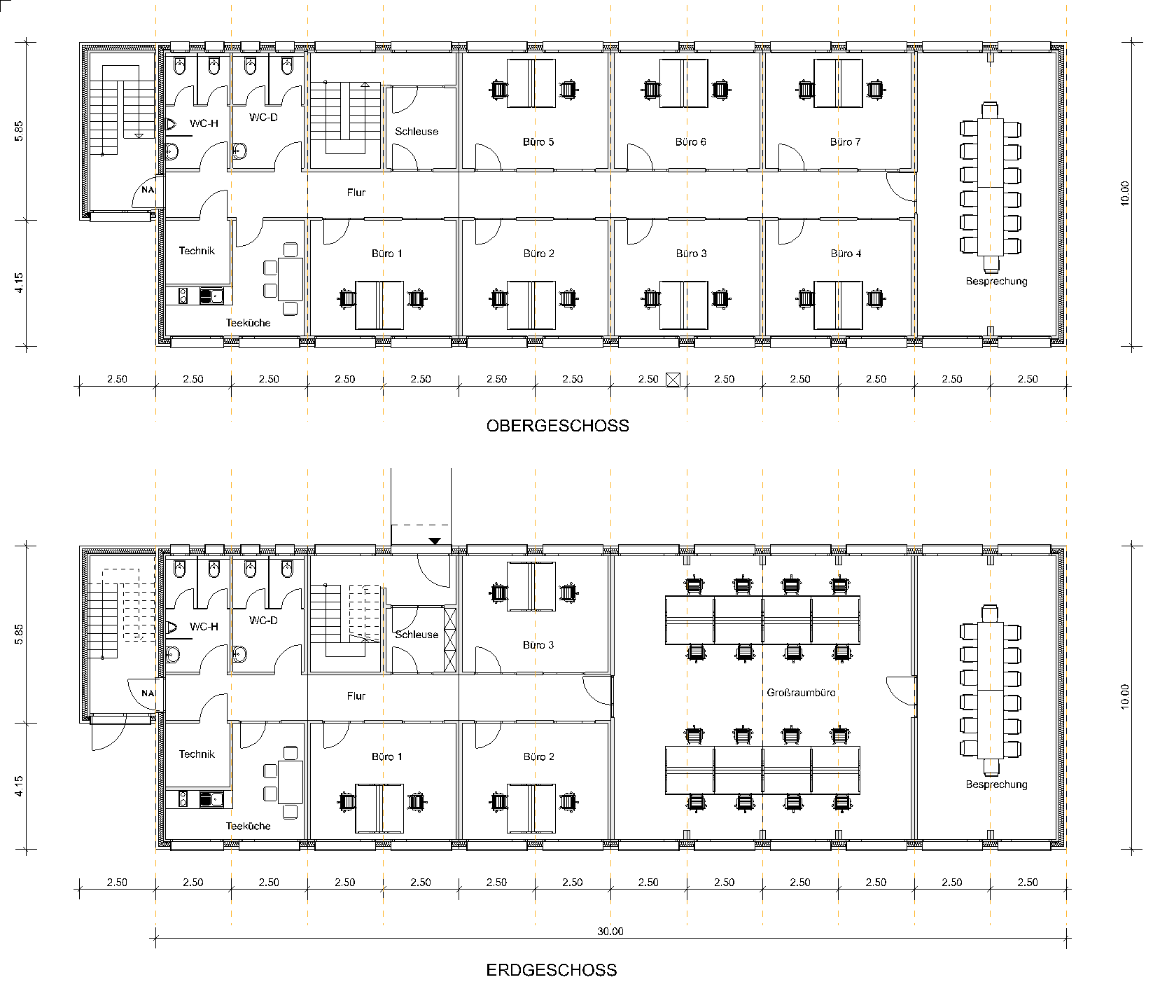
Bürogebäude
PRO Architektur
Bernd Dietrich Architekt
Telefon: +49 7272 77100
Telefax: +49 7272 77200
E-Mail: dietrich@proarchitektur.de
Anschrift: Waldstückerring 17A, 76756 Bellheim
Sie haben ein Projekt.
Wir haben die Ideen.
Lassen Sie uns ins Gespräch kommen
- Mo – Fr
- 09:00 – 18:00
- Sa – So
- Geschlossen


















































